Home Nemovitosti, reality Rodinné domy, vily, chaty

PASPORT STAVEB

Ostrava
9. 10. 2025 - 13:16
14 000 Kč
Prodávající

Popis

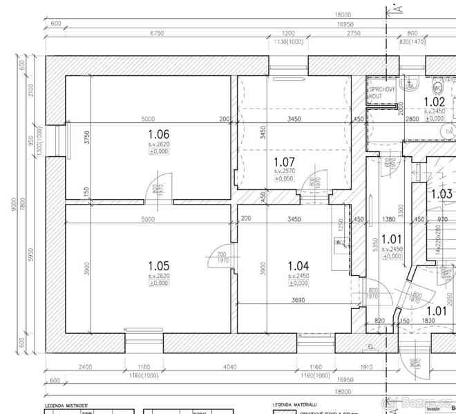
Nemáte k Vaší nemovitosti původní výkresovou dokumentaci? Měl by se zpracovat pasport stavby. Jde tedy o dokumentaci skutečného stavu objektu.
Dokumentaci zpracovávám pro rodinné domy, garáže, hospodářské budovy, bytové domy i jednotlivé bytové jednotky.

Pasport je zpracován v souladu s platným stavebním zákonem a slouží jako plnohodnotný podklad pro příslušný úřad.

Pasport obsahuje:
- zaměření domu projektantem
- digitalizace skutečného stavu
-umístění domu na pozemku (dle podkladu geometrického zaměření-vyhotoveného geodetem)
-půdorysy jednotlivých podlaží domů
-schematický řez domu
-venkovní pohledy (sever, jih, východ, západ)
-fotodokumentace objektu
-textovou část (zkrácenou část technické zprávy)
-vše v elektronické podobě ve formátu PDF,
-cena zahrnuje také tisk dokumentace (3x)!

Kdy se pasport hodí?

-pro komunikaci se stavebním úřadem (katastrálním úřadem)
-prodej nemovitosti
-podklad pro dotaci
-při odhadu ceny nemovitosti

Cena: 14 000Kč / rodinný dům do zastavěné plochy 100m2, poté individuální cena

V případě zájmu mě prosím kontaktujte! :)

Základní údaje

Oblast inzerce
Ostrava
Druh inzerátu
soukromá inzerce
Číslo inzerátu
1390681593600961108
14 000 Kč
Prodávající

PASPORT STAVEB

Zavřít Zavřít
Prodávající
Lenka Kubačáková
Pošlete uživateli zprávu
0 / 1000

Nahlásit inzerát

Zavřít Zavřít
0 / 2000
Děkujeme za zpětnou vazbu! Inzerát byl nahlášen!