Home Nemovitosti, reality Komerční reality

Pronájem skladu - stodoly Holasice, 117 m2

Holasice
24. 11. 2025 - 18:35 (upraveno)

Popis

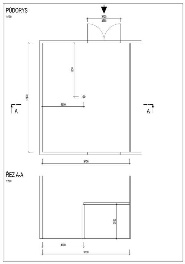
Nabízíme k pronájmu skladovací prostor Holasice u Brna, CP 117 m2, ve stodole.
- Půdorysné rozměry cca 12,7m x 9,7m.
- Cca uprostřed je dřevěný sloup, který podpírá podlaží. Světlá výška v tomto místě je cca 3,8m
- Rozměr vrat je šířka 3,7m x výška 3,65m.
- Preferováno je, aby zde byl klid ideálně minimální pohyb (v druhé polovině stodoly je bydlení), žádná výroba atp.
- Nájemné: 5000 Kč/měs., vratná kauce dohodou , provize RK 1 nájem (nejsme plátci DPH)
- Volné ihned
- Elektřina zatím není zavedena, po dohodě možno podružný elektroměr, t. 608 608871 RK

Parametry

Povaha inzerátu
pronájem
Druh objektu
komerční prostory, části budov
Účel nemovitosti
skladové prostory a budovy
Energetická třída (štítek)
G
Stav nemovitosti
dobrý
Užitná plocha (m²)
117

Základní údaje

Oblast inzerce
Holasice
Druh inzerátu
soukromá inzerce
Číslo inzerátu
1564022171535530508

Pronájem skladu - stodoly Holasice, 117 m2

Zavřít Zavřít
Prodávající
Lenka Valoušková - PROVA reality
Pošlete uživateli zprávu
0 / 1000

Nahlásit inzerát

Zavřít Zavřít
0 / 2000
Děkujeme za zpětnou vazbu! Inzerát byl nahlášen!