Home Nemovitosti, reality Rodinné domy, vily, chaty

Dům v rekonstrukci 119 m² Velké Březno, Vítov, okr. Ústí n.L

Velké Březno
28. 4. 2026 - 21:20
6 000 000 Kč

Popis

Mnozí lidé hledají klid od ruchu města v prostření příměstského bydlení. Ještě vyhledávanější způsob je rekonstrukce vlastní rekreační chaty na plnohodnotné stálé bydlení v přírodním prostředí nejenom o víkendech.
K tomuto kroku přistoupil i prodávající nabízené nemovitosti. Škoda, že z osobních důvodů nemůže sám přestavbu dokončit. Stavba se nachází ve vyhledávané lokalitě Velké Březno – Vítov na konci slepé ulice Litoměřická.
Dům je částečně podsklepen. Před domem je nová odpadní betonová jímka o maximálním objemu 14 m³. Dům je částečně zateplen 5 cm izolační vrstvou. Půdní prostor je zateplen z větší části 20 cm vatou. Kompletní odpadní rozvody jsou připraveny a osazeny v celém objektu včetně sběrače šedé a odpadní vody pro karavany.
Přípravu na dobíjení OA jistě uvítají majitelé elektro automobilů. Záměr se týká i posuvné brány na 150 cm výšky s výplní. Plyn je zaveden a v stavební dokumentaci je počítáno s vytápěním plynovým kotlem. Objednané dřevěné schodiště z kuchyňského prostoru do podkroví je ve výrobě a budou součástí předání v ceně. Kuchyňský prostor je plně zajištěn sítěmi. Přízemní prostory jsou osazený okny s trojsklem HS portal včetně balkonových dveří na budoucí terasu. V obývacím pokoji je komínový vývod pro krbová kamna.
Projekt přístavku koupelny počítá s vchodem z ložnice v přízemí. Zde má být umístěn plynový kotel, sprchový kout, WC, místo pro pračku se sušičkou, sušicí žebříček a umyvadlo. Pro všechna média jsou připraveny přívody i armatury.
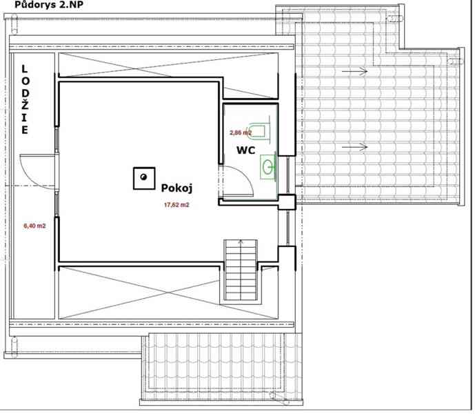
V podkrovním prostoru se počítá s ložnicí se vstupem na příjemnou lodžii s výhledem na pstruhový Homolský potok. Součástí podkroví je i WC s umyvadlem.
Vedlejší samostatná stavba o výměře 20 m² včetně elektro přípravy měla být příjemnou saunou a osvěžujícím whirlpoolem.
Pod uzavřením mohou na pozemku parkovat až 3 OA. Jeden parkovací prostor je pod zastřešením. K odpočinku vybízí i zastřešená pergola mezi domem a vedlejší stavbou.
V ceně je již vedle jmenovaného i kompletní projektová doku

Parametry

Povaha inzerátu
prodej
Druh domu
rodinný dům, vila
Dispozice
4+kk
Materiál stavby
cihla
Umístění a okolí
klidná část obce
Možnost parkování
kryté parkovací stání
Energetická třída (štítek)
G
Vybavenost domu
nezařízeno
Stav domu
před rekonstrukcí
Počet podlaží
2
Podlahová plocha domu (m²)
67
Plocha parcely (m²)
411

Ostatní

Sklep apod.
Zpráva pro realitky

Základní údaje

Oblast inzerce
Velké Březno
Druh inzerátu
soukromá inzerce
Číslo inzerátu
93354724545421268881
6 000 000 Kč

Dům v rekonstrukci 119 m² Velké Březno, Vítov, okr. Ústí n.L

Zavřít Zavřít
Prodávající
Jan Hrstka - makléř specialista
Pošlete uživateli zprávu
0 / 1000

Nahlásit inzerát

Zavřít Zavřít
0 / 2000
Děkujeme za zpětnou vazbu! Inzerát byl nahlášen!