Home Nemovitosti, reality Rodinné domy, vily, chaty
Je nám líto, ale tenhle inzerát již není aktuální.

Prodej RD 5+kk v klidné lokalitě obce Pržno, okr. Vsetín

Pržno
4. 4. 2016 - 11:27
Dohodou
Prodávající

Popis

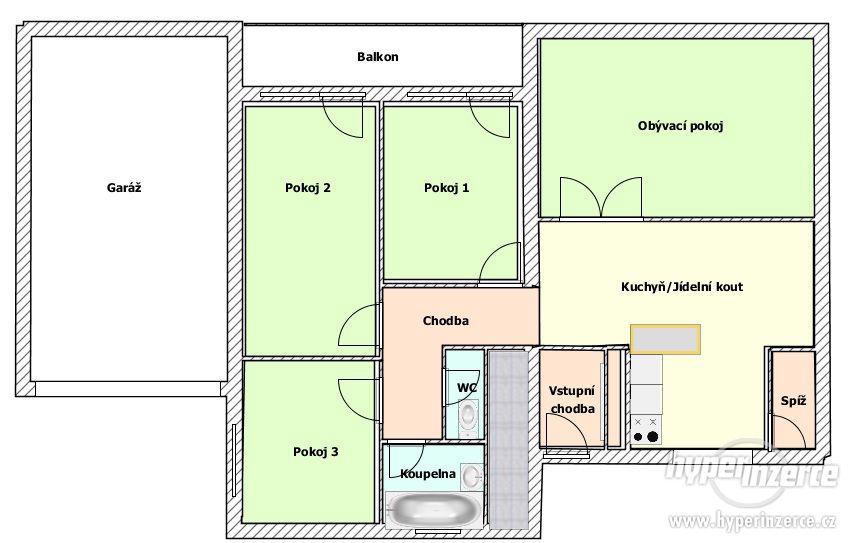
Se souhlasem majitelů nabízíme RD 5+kk v klidné lokalitě obce Pržno vzdálené jen 7 km od města Vsetín, a 11 km od Valašského Meziřičí. Dům je umístěn v okrajové části obce s jižní orientací a výhledem na obec a přiléhajicí údolí. DISPOZICE DOMU Jedná se o dvoupodlažní RD, kde první patro slouží jako technické zázemí domu (prádelna, kotelna, sklep, dílna) a druhé patro jako obytné (5+kk). Spodní technické patro lze upravit na samostatnou bytovou jednotku 2+kk či 3+kk, které by mohlo přinést řešení pro početnější rodinu, nebo by bylo možné tuto jednotku samostatně pronajímat. TECHNICKÝ STAV DOMU Dům byl vybudován začátkem 80-tých letech a zkolaudován v roce 1984. Dům prošel částečnou rekonstrukcí; byla vyměněna okna v obytném patře, podlahy jsou v obytných místnostech laminátové, PVC nebo keramické. Vytápění domu je ústřední-kombinované - plyn/dřevo; taktéž TUV je zajištěna elekt. nebo plynovým bojlerem. Nemovitost je napojena na obecní vodovod i kanalizaci. JINÉ Obec Pržno nabízí částečnou občanskou vybavenost (obchod potraviny, MŠ, ZŠ (1-5); rozšířené občanské vybavení nabízí přiléhajicí obec Jablůnka. Dům je bez právních vad a lze jej bez problému financovat z hypotéčního úvěru se sazbou již od 1,78%. Průkaz energetické náročnosti budovy bude zájemci předložen po prohlídce. S ohledem na legislativní požadavek na zveřejnění PENB je objekt aktuálně označen jako "G" . Pro více informací či domluvení prohlídky, kontaktujte prosím makléře nemovitosti.
Popis nemovitosti
Se souhlasem majitelů nabízíme RD 5+kk v klidné lokalitě obce Pržno vzdálené jen 7 km od města Vsetín, a 11 km od Valašského Meziřičí. Dům je umístěn v okrajové části obce s jižní orientací a výhledem na obec a přiléhajicí údolí. DISPOZICE DOMU Jedná se o dvoupodlažní RD, kde první patro slouží ...

Celý popis
Cena: Informace v RK
Lokalita: Pržno, Vsetín, Zlínský
Stav nabídky:
aktuální
Číslo: 812
Typ reality: Samostatný rodinný dům - Dům, vila
Plocha: 658 m2
Kontakt na makléře

Kontakt na makléře

Jana Neumannová

607 424 765

jana.neumannova@exporeality.cz

Kontaktovat makléře

Nabídky makléře

Parametry

Povaha inzerátu
prodej
Druh domu
rodinný dům, vila
Dispozice
5+kk
Materiál stavby
cihla
Umístění a okolí
klidná část obce
Možnost parkování
garáž
Energetická třída (štítek)
G
Vybavenost domu
částečně zařízeno
Stav domu
velmi dobrý
Poloha domu
samostatný
Podlahová plocha domu (m²)
240
Plocha parcely (m²)
658
Počet podlaží
2
Rok kolaudace
1984

Ostatní

Sklep apod.

Prodej RD 5+kk v klidné lokalitě obce Pržno, okr. Vsetín

Zavřít Zavřít
Prodávající
Jana Neumannová
Pošlete uživateli zprávu
0 / 1000

Nahlásit inzerát

Zavřít Zavřít
0 / 2000
Děkujeme za zpětnou vazbu! Inzerát byl nahlášen!