Home Nemovitosti, reality Rodinné domy, vily, chaty

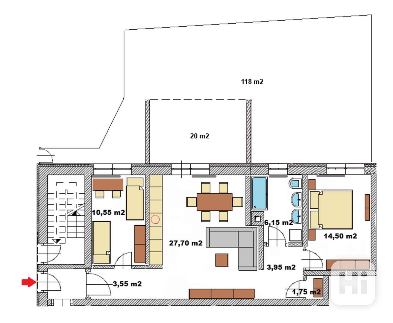
Prodej bytu podle plánu, 3+kk, viz plán. Chlum u Hlinska.

Chlum
27. 3. 2026 - 16:45
3 900 000 Kč
Prodávající

Popis

Prodej bytu podle plánu, 3+kk, viz plán.
Byt se nachází v klidné a tiché lokalitě.

Neprodáváme jen tak někomu. Hledáme rodinu s referencemi, tichou, zdvořilou, spolehlivou a milující přírodu a květiny.
Bydlíme také ve stejném domě. Nejsme Češi, jsme z Jižního Tyrolska.
Odhadovaná tržní cena: 4 200 000 Kč.

Prodejní cena: 3 900 000 Kč.
Cena dohodou.
Je cena stále příliš vysoká? Přijďte si to probrat.

Byt v rekonstrukci.
Předpokládané předání v roce 2026.
Pro více informací a podrobnosti nás prosím kontaktujte pouze po předchozí domluvě.

252 m2 komerční prostor:
(+ část společného pozemku)
- Byt č. 1, přízemí - 70 m2
- Terasa - 20 m2
- Zahrada - 118 m2
- Sklep - 9 m2
- 2 parkovací místa - 35 m2

Vytápění s tepelným čerpadlem, elektřinou a vodou z hlavního přívodu - vše nezávislé.
Komín o průměru 23 cm uprostřed obývacího pokoje s možností připojení kamen na dřevo.
Bezpečnostní vstupní dveře italské výroby.
Podlahy, dveře, okna a koupelnové doplňky – vše nové.
Byt je nezařízený.

V případě skutečného zájmu mě prosím kontaktujte. Žádné ztráty času. Děkuji.

Informace neposkytujeme telefonicky.
Schůzku si prosím domluvte výhradně e-mailem nebo přes WhatsApp.

WhatsApp: 774-216-455
tomasi.sro@gmail.com
La Bottega – Potravinové speciality z Südtirol - Alto Adige

Parametry

Povaha inzerátu
prodej
Druh domu
rodinný dům, vila
Dispozice
3+kk
Materiál stavby
cihla
Umístění a okolí
klidná část obce
Možnost parkování
kryté parkovací stání
Vybavenost domu
nezařízeno

Základní údaje

Oblast inzerce
Chlum
Druh inzerátu
soukromá inzerce
Číslo inzerátu
196423731811548508
3 900 000 Kč
Prodávající

Prodej bytu podle plánu, 3+kk, viz plán. Chlum u Hlinska.

Zavřít Zavřít
Prodávající
Olena
Pošlete uživateli zprávu
0 / 1000

Nahlásit inzerát

Zavřít Zavřít
0 / 2000
Děkujeme za zpětnou vazbu! Inzerát byl nahlášen!